+1 256-888-8469 tay@knotworkingtiny.com Lake Guntersville Alabama
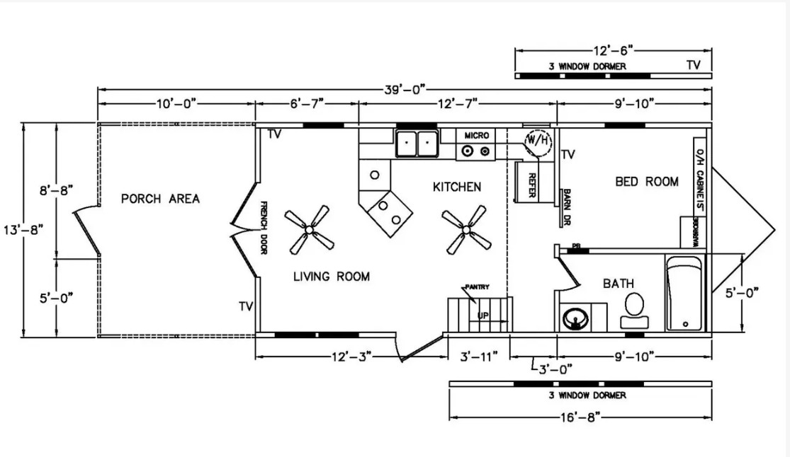
4 guests · 2 bedrooms · 3 beds · 1 bath

    
    
    
    
  
    
  
   
  
   
  
  
   
   
    
  
  
  
    
Unlock expert advice and make your tiny home journey effortless.
ceiling Fans (per plan)
R-11 Insulation in the Floor & Walls
R-19 Insulation in the Ceiling and Roof
29 Gauge Metal Roof
Shutters and/or Trim
Tongue & Groove Knotty Pine Interior
OSB Subfloor with Commercial Grade Tile or Sheet Linoleum - Gray or Brown Linoleum
Pine Trim
Recessed Lighting
Solid Pine Interior Doors
Thermal Double Pane Vinyl Windows with Tilt Sash
Deluxe Lighting at all Exterior Doors

Custom Cabinets & Formica Countertops
White, Black, or Stainless Steel Farmhouse White, Black, or Stainless Steel Farmhouse Kitchen Sink (Double or Single) with Gooseneck Faucet
Custom Farmhouse Light Over Kitchen Sink
Full Size Refrigerator - Size Dependent on Plan Layout
30” Gas or Electric Range/Cooktop Above Range Microwave
On Demand Electric Water Heater (Per Request)

Comfort Height Porcelain Toilet with Cut-off Valve
Porcelain Lavatory Sink in Bath
Custom Countertops
Light and Exhaust Fan in Bathroom
Fiberglass Shower or Tub/Shower Combination





Expert Guidance: As your local tiny home dealer, we’re here to help you find the model that fits your lifestyle, needs, and budget.
High-Quality Construction: Our tiny homes are built to last with durable materials and superior craftsmanship.
Personalized Service: From the first consultation to the final delivery, our team is dedicated to providing a seamless and enjoyable experience.

Ready to find your dream tiny home? Contact us today to schedule a viewing or learn more about the models available. We can’t wait to help you make your tiny home dreams a reality!

Copyright ©2020 All rights reserved