+1 256-888-8469 tay@knotworkingtiny.com Lake Guntersville Alabama

Starry Skies

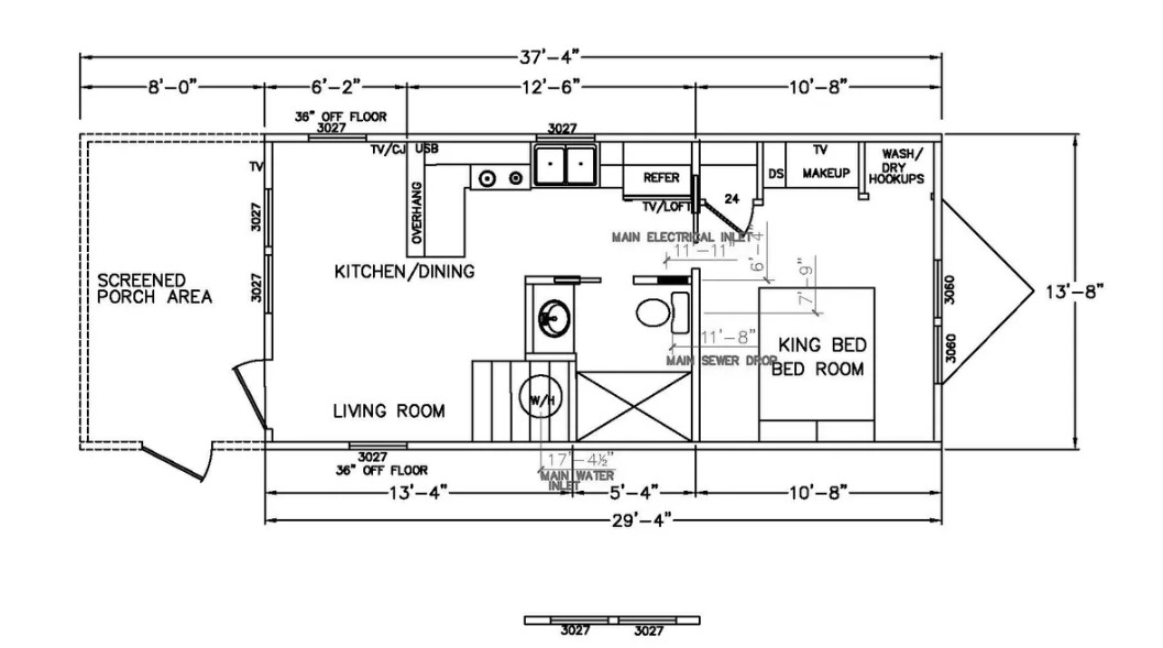
4B 103 Special

Balsam Bungalow

4 guests · 2 bedrooms · 3 beds · 1 bath

Ultimate Guide: Top 10 Tips for Choosing Your Perfect Tiny Home!

Unlock expert advice and make your tiny home journey effortless.

4B 103 Special Floor Plan & Features

blue lagoon

General

ceiling Fans (per plan)

R-11 Insulation in the Floor & Walls

R-19 Insulation in the Ceiling and Roof

29 Gauge Metal Roof

Shutters and/or Trim

Tongue & Groove Knotty Pine Interior

OSB Subfloor with Commercial Grade Tile or Sheet Linoleum - Gray or Brown Linoleum

Pine Trim

Recessed Lighting

Solid Pine Interior Doors
Thermal Double Pane Vinyl Windows with Tilt Sash

Deluxe Lighting at all Exterior Doors

FAQ image

Kitchen

Custom Cabinets & Formica Countertops

White, Black, or Stainless Steel Farmhouse White, Black, or Stainless Steel Farmhouse Kitchen Sink (Double or Single) with Gooseneck Faucet 

Custom Farmhouse Light Over Kitchen Sink

Full Size Refrigerator - Size Dependent on Plan Layout 

30” Gas or Electric Range/Cooktop Above Range Microwave

On Demand Electric Water Heater (Per Request)

FAQ image

Bathroom

Comfort Height Porcelain Toilet with Cut-off Valve

Porcelain Lavatory Sink in Bath

Custom Countertops

Light and Exhaust Fan in Bathroom

Fiberglass Shower or Tub/Shower Combination

Options

Why Choose Knot Working Tiny Town?

  • Expert Guidance: As your local tiny home dealer, we’re here to help you find the model that fits your lifestyle, needs, and budget.

  • High-Quality Construction: Our tiny homes are built to last with durable materials and superior craftsmanship.

  • Personalized Service: From the first consultation to the final delivery, our team is dedicated to providing a seamless and enjoyable experience.

Get Started on Your Tiny Home Journey!

Ready to find your dream tiny home? Contact us today to schedule a viewing or learn more about the models available. We can’t wait to help you make your tiny home dreams a reality!